5396 Burnett Road, Sechelt District, Sechelt

$5,999,000 |   MLS® Number  C8062313

Commercial Land for sale in Sechelt, Sunshine Coast, 5396 Burnett Road, 224967382 | Realtylink.org

Commercial Land for sale

Lot Size
1,463,616 sqft
Gross Property Tax
$9,702.46 /year
Zoning
RES
Bylaws Restriction
Call Listing Agent
Water Supply
None
Sewer/Septic
None
3

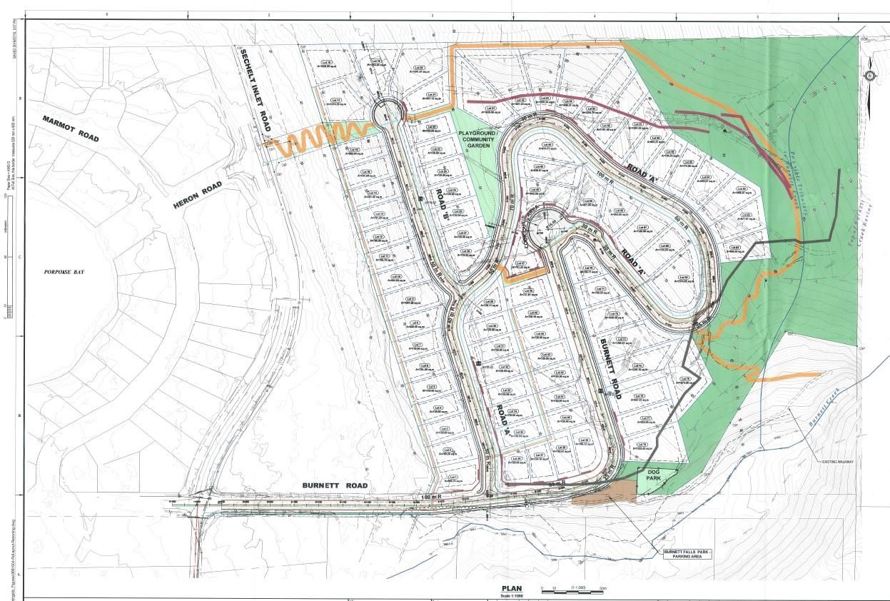
33.6 Acres!! Investor's and Developer's alert!! This is the huge subdivision lot for 78 ocean view detached houses, or a huge rezoning lot, for up to 300+ townhouses, really a astonishing project to develop. This is the largest and rarely available whole piece development property in Sechelt and Sunshine Coast!! Great potential development and future value. Don't miss it!!!