166 628 E Kent South Avenue, South Marine, Vancouver

| $17 /year /sqft   MLS® Number  C8073897

Industrial for lease in Vancouver, Vancouver East, 166 628 E Kent South Avenue, 224978966 | Realtylink.org

Industrial for lease

Year Built
2012
Total Space Avail. For Lease (Rent)
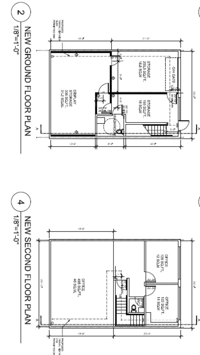
2107 sqft
Building Type
Office, Warehouse
Zoning
I-2
100

2107 square feet office/warehouse in the Rivershore Business Park is primely located in South Vancouver one block south of Marine Drive between Fraser Street and Main Street. This riverfront business park is situated to provide easy access to Downtown Vancouver, Vancouver International Airport and key transportation routes throughout the Lower Mainland. This area is well serviced by public transit and now provides enhanced access for commuters using the Canada Line. This warehouse is renovated across two floors and includes two bathrooms and a kitchen — contact agents for more details and to book a showing.