102 2677 192 Street, Hazelmere, Hazelmere, Surrey

| $20 /year /sqft   MLS® Number  C8074731

Office for lease in Hazelmere, Surrey, South Surrey White Rock, 102 2677 192 Street, 224979800 | Realtylink.org

Office for lease

Total Space Avail. For Lease (Rent)
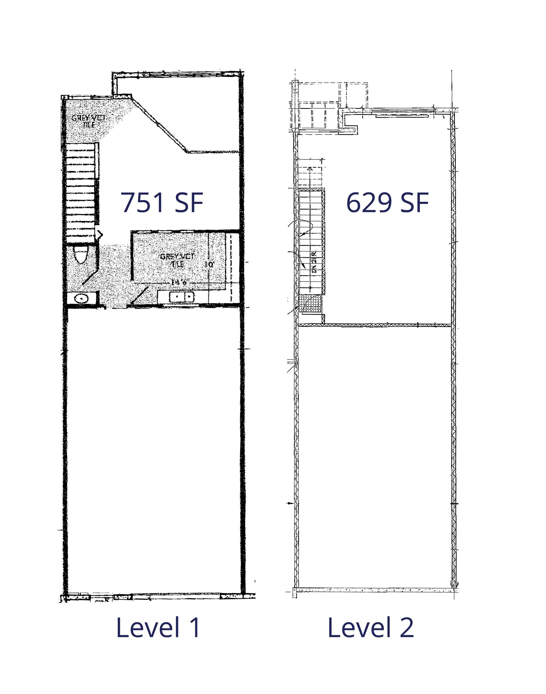
1380 sqft
Estimated Additional Rent
$6.40 /year /sqft
Zoning
IB1
46

Opportunity to sublease improved office space in the heart of the Campbell Heights Business Centre. Well-maintained and improved ground floor and second floor spaces available, with excellent access to major transportation routes and surrounding amenities.